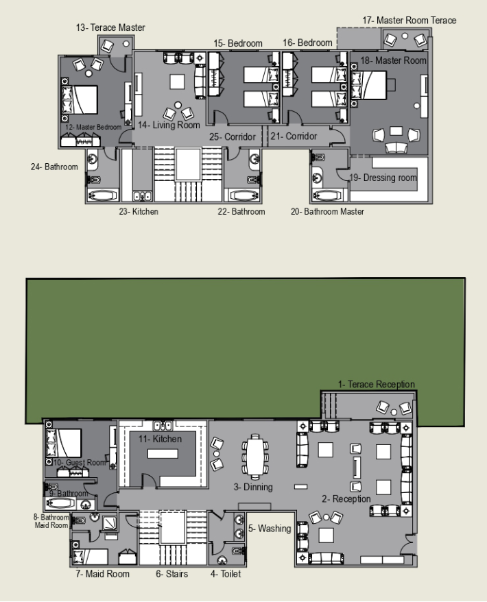
Duplex Type A



Spacious Two-Level Floor Plan
This two-level floor plan combines luxury and flexibility, with a clear separation of public and private areas, dual living spaces, multiple terraces, and a master suite with private amenities—ideal for multi-generational living and seamless indoor-outdoor flow.
| Space | L | W |
|---|---|---|
| Terace Reception | 1.5 | 5.15 m |
| Reception | 8.3 | 6.75 m |
| Dinning | 5.25 | 5.15 m |
| Toilet | 2.15 | 1.35 m |
| Washing | 2.15 | 1.75 m |
| Stairs | 4 | 3.30 m |
| Maid Room | 2.25 | 3.75 m |
| Bathroom Maid Room | 2.6 | 1.15 m |
| Bathroom | 1.85 | 2.9 m |
| Guest Room | 3.3 | 4.1 m |
| Kitchen | 5 | 3.9 m |
| Master Bedroom | 4.15 | 5.15 m |
| Terace Master | 1.95 | 1.2 m |
| Living Room | 5.5 | 4.15 m |
| Bedroom | 4.15 | 4.15 m |
| Bedroom | 3.8 | 3.9 m |
| Master Room Terace | 2.65 | 1.45 m |
| Master Room | 5.65 | 4.5 m |
| Dressing room | 4.5 | 2.55 m |
| Bathroom Master | 2.15 | 3.05 m |
| Corridor | 8 | 1.3 m |
| Bathroom | 3.1 | 2.15 m |
| Kitchen | 3.1 | 1.85 m |
| Bathroom | 1.95 | 3.1 m |
| Corridor | 6.15 | 1.3 m |
| Space | L | W |
|---|---|---|
| Terace Reception | 4.7 | 1.25 m |
| Reception | 8.6 | 6.75 m |
| Dinning | 5.15 | 5.1 m |
| Toilet | 2.15 | 1.35m |
| Washing | 2.15 | 1.75 m |
| Stairs | 4 | 3.10 m |
| Maid Room | 2 | 3.8 m |
| Bathroom Maid Room | 2.65 | 1.15 m |
| Bathroom | 1.85 | 2.9 m |
| Guest Room | 3.3 | 4.15 m |
| Kitchen | 5 | 3.85 m |
| Terace Master | 2.8 | 1.25 m |
| Master Room | 7.15 | 5.8 m |
| Dressing room | 4.5 | 2.75 m |
| Bathroom Master | 3 | 2.15 m |
| Corridor | 8 | 1.3 m |
| Bathroom | 2.15 | 3.1 m |
| Kitchen | 1.85 | 3.05 m |
| Bathroom Master | 3.05 | 1.95 m |
| Master Room | 5.15 | 4.15 m |
| Terace Master | 1.9 | 1.35 m |
| Living Room | 5.45 | 4.15 m |
| Bedroom | 4.15 | 4.15 m |
| Bedroom | 3.8 | 4.15 m |
| Corridor | 6.25 | 1.3 m |
Facilities
Our developments feature carefully planned facilities that ensure comfort, functionality, and long-term value for residents.
Retail & Dining
Premium Mall
Food Court
Hypermarket
Branded Restaurants & Cafes
Healthcare & Family Services
Medical Center
Baby Sitting Center
Pharmacy 24/7
Security & Smart Living
Building Access Card
Security System
Centralsatellite & WIFI
Wellness & Recreation
Club House
Healthy Club & Spa
Beauty Center
Services & Convenience
ATMs
House Keeping
Business Center
Residential Parking
Outdoor & Lifestyle
Green Areas
Bicycle
Golf Cart
Swimming Pools
Choose Your Home Type
Discover a selection of unit types designed to suit different lifestyles, each offering smart layouts, comfortable spaces, and modern design.
Garden Type C
1 Buildings
Each building offers unique floor plans.
Garden Type B
1 Buildings
Each building offers unique floor plans.
Typical Type C
2 Buildings
Each building offers unique floor plans.
Typical Type B
2 Buildings
Each building offers unique floor plans.
Typical Type A
2 Buildings
Each building offers unique floor plans.
Duplex Type C
1 Buildings
Each building offers unique floor plans.
Duplex Type B
1 Buildings
Each building offers unique floor plans.
Have Questions?
We are here to help
Our team is ready to assist with all your property inquiries and needs.